MAKİNALAR
Açık Karıştırıcı
Bu çift milli karıştırıcı, kilin su ile karıştırıldığı makinedir. Karıştırma kalitesi, oldukça homojen şekilde nemlendirilmiş bir karışım elde edilmesini sağlar. Bu sonucu optimum granülasyon (tane yapısı) ile elde edebilmek için bıçak eğimleri özel olarak hesaplanmıştır. Kaplamaların kalitesi elektrik tüketimini azaltır. Kullanılan malzemeler, aşınmayı en aza indirmek amacıyla makinenin çalışma şartlarına uygun olarak seçilmiştir. Makine, uluslararası güvenlik standartlarına uygundur.
| TEKNİK ÖZELLİKLER | |||||
|---|---|---|---|---|---|
| ÖZELLİKLER | BİRİM | Ø 550 | Ø 620 | Ø 720 | Ø 820 |
| Tekne Genişliği / Uzunluğu | mm | 750 / 3500 | 900 / 3000 | 1000 / 4000 | 1200 / 4000 |
| Motor Gücü | kW | 55 / 75 | 75 / 90 | 90 / 110 | 132 / 160 |
| Kapasite | t/s | 50 - 70 | 70 - 90 | 120 - 150 | 160 - 200 |
Açık Karıştırıcı Ayarı
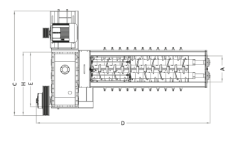
| TEKNİK ÖLÇÜLER (mm) | ||||||||||||
|---|---|---|---|---|---|---|---|---|---|---|---|---|
| MODEL | A | B | C | D | E | F | G | H | I | J | K | L |
| AK Ø 500 | Ø 900 | 3360 | 2980 | 5000 | 1565 | 1305 | 3600 | 1615 | 955 | 1505 | 360 | 2965 |
| AK Ø 550 | Ø 750 | 3400 | 3085 | 5015 | 1590 | 1040 | 3500 | 1835 | 1000 | 1550 | 470 | 2830 |
| AK Ø 620 | Ø 900 | 4000 | 3000 | 5670 | 1555 | 1410 | 4000 | 1700 | 1000 | 1620 | 600 | 3940 |
| AK Ø 720 | Ø 1000 | 4000 | 3150 | 5745 | 1670 | 1425 | 4000 | 1870 | 1100 | 1655 | 570 | 3940 |
| AK Ø 820 | Ø 1200 | 4000 | 3475 | 5810 | 1820 | 1530 | 4000 | 1960 | 1200 | 1720 | 540 | 3940 |
Açık Karıştırıcı
Bu çift milli karıştırıcı, kilin su ile karıştırıldığı makinedir. Karıştırma kalitesi, oldukça homojen şekilde nemlendirilmiş bir karışım elde edilmesini sağlar. Bu sonucu optimum granülasyon (tane yapısı) ile elde edebilmek için bıçak eğimleri özel olarak hesaplanmıştır. Kaplamaların kalitesi elektrik tüketimini azaltır. Kullanılan malzemeler, aşınmayı en aza indirmek amacıyla makinenin çalışma şartlarına uygun olarak seçilmiştir. Makine, uluslararası güvenlik standartlarına uygundur.
| TEKNİK ÖZELLİKLER | |||||
|---|---|---|---|---|---|
| ÖZELLİKLER | BİRİM | Ø 550 | Ø 620 | Ø 720 | Ø 820 |
| Tekne Genişliği / Uzunluğu | mm | 750 / 3500 | 900 / 3000 | 1000 / 4000 | 1200 / 4000 |
| Motor Gücü | kW | 55 / 75 | 75 / 90 | 90 / 110 | 132 / 160 |
| Kapasite | t/s | 50 - 70 | 70 - 90 | 120 - 150 | 160 - 200 |
Açık Karıştırıcı Ayarı
| TEKNİK ÖLÇÜLER (mm) | ||||||||||||
|---|---|---|---|---|---|---|---|---|---|---|---|---|
| MODEL | A | B | C | D | E | F | G | H | I | J | K | L |
| AK Ø 500 | Ø 900 | 3360 | 2980 | 5000 | 1565 | 1305 | 3600 | 1615 | 955 | 1505 | 360 | 2965 |
| AK Ø 550 | Ø 750 | 3400 | 3085 | 5015 | 1590 | 1040 | 3500 | 1835 | 1000 | 1550 | 470 | 2830 |
| AK Ø 620 | Ø 900 | 4000 | 3000 | 5670 | 1555 | 1410 | 4000 | 1700 | 1000 | 1620 | 600 | 3940 |
| AK Ø 720 | Ø 1000 | 4000 | 3150 | 5745 | 1670 | 1425 | 4000 | 1870 | 1100 | 1655 | 570 | 3940 |
| AK Ø 820 | Ø 1200 | 4000 | 3475 | 5810 | 1820 | 1530 | 4000 | 1960 | 1200 | 1720 | 540 | 3940 |







